杭州清风室内设计培训学校

7x24小时咨询热线

400-660-3310

当前位置 : 好学校 杭州室内设计 杭州清风室内设计培训学校 课程正文

人看过 人预约 收藏分享

杭州CAD家装施工图实战课程

授课方式 :
上课时段:

上课校区:

报读该课程可在好学校领取返现奖励20元

微信扫码添加老师好友咨询

杭州清风室内设计培训学校

杭州清风室内设计培训学校

认证等级

信誉良好,可安心报读

杭州清风室内设计培训学校

已获好学校V2信誉等级认证

信誉值

  • (60-80)基础信誉积累,可放心报读
  • (81-90)良好信誉积累,可持续信赖
  • (91-100)充分信誉积累,推荐报读

与好学校签订读书保障协议:

在线咨询
2026.03.14 先*生 187*****118 咨询了 周边交通
2026.03.08 机*主 182*****180 咨询了 周边交通
2026.01.21 王*司 180*****373 咨询了 招生对象
2025.12.31 李*生 133*****456 咨询了 上课时段
2025.12.29 晓*漫 150*****104 咨询了 周边交通
2025.11.13 g*6 134*****163 咨询了 开班时间
2025.11.12 郭*成 132*****870 咨询了 开课校区
2025.11.12 王* 157*****630 咨询了 课程费用
2025.11.12 杨* 159*****819 咨询了 上课时段
2025.11.06 马*权 158*****662 咨询了 招生对象
2025.10.25 机*主 159*****370 咨询了 授课师资
2025.10.18 吴*生 186*****325 咨询了 招生对象
2026.03.07 龙*子 177*****406 咨询了 上课时段
杭州CAD家装施工图实战课程

【适合对象】

零基础或在职设计师提升或有在装修设计公司实习或做过助理相关基础的想系统学习家装施工图课程的相关人员,独立完成家装施工图作品集

【课程目标】

数量掌握CAD软件的运用,了解并掌握一套家装施工图的完整绘制流程,以及在此过程中对于方案思考的逻辑能力,从而能对接现场施工遇到的问题。

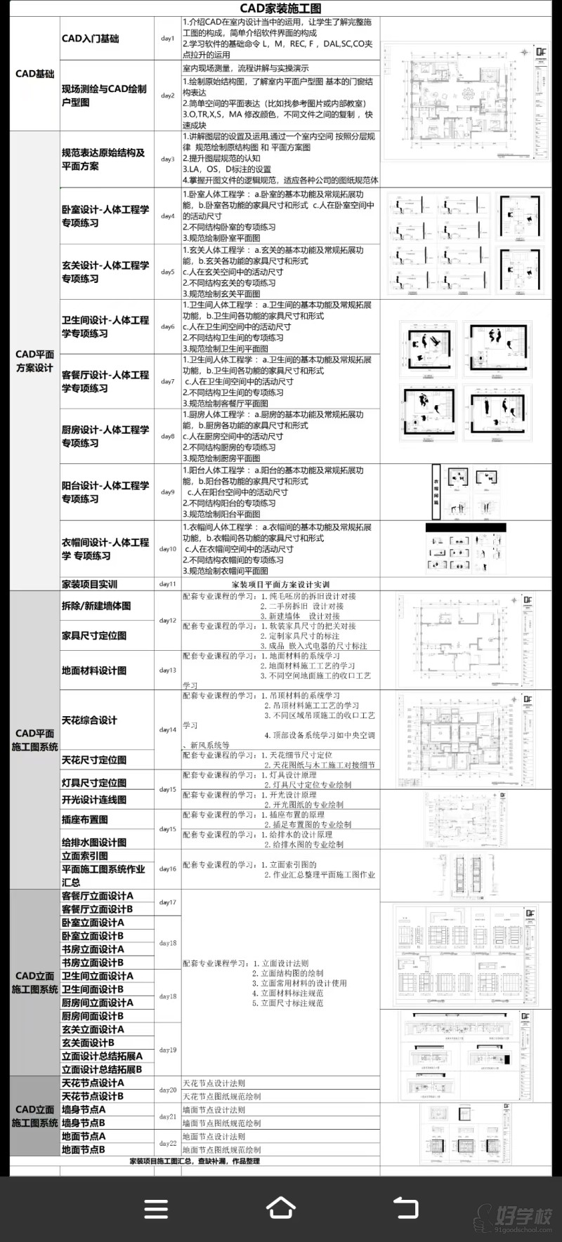
【课程设置】

熟练掌握CAD软件的运用,掌握系统规范的施工图规范体系,全面系统的学习家装平面施工图系统,立面施工图系统,节点大样施工图系统。

【课程大纲】

【教学优势】

专攻室内设计一门专业,一线设计师实战教学,专注家装套房设计,大平层空间设计,排屋别墅的空间

【作品展示】

作品

作品

作品

作品

作品

作品

作品

【杭州清风室内设计培训学校】

杭州清风室内设计培训学校专攻室内设计专业培训,隶属于杭州清风教育科技有限公司,由原中国美院建筑设计院首席设计师及浙大设计院主案设计师联合组建。

定位:仅专注室内设计单一领域,强调教学深度与实用性,打造 “清风室内” 特色品牌。

合作资源:依托中国美院学术支持,同时与 dop 设计公司、青设会等知名设计机构合作,为学员提供项目实践机会与就业资源。

【教学优势】

师资团队:由中国美院、浙大设计院一线设计师及行业专家组成,学员可参与真实项目并获得设计提成。

就业支持:通过合作企业为学员提供实习机会,毕业生可优先进入设计公司任职。

【师资优势】

清风室内设计机构在师资方面极具特色,主要由中国美院一线设计师以及业内知名设计公司设计师组成,具备丰富的项目经验和教学经验。

讲师 1:东晓老师

清风教育合伙人,从业 12 年。擅长领域:深化设计、施工工艺、节点构造。现任国内知名设计公司 dop 设计经理,同时为室内设计畅销书作者。

讲师 2:孙老师

从业设计 10 年,现任清风室内设计事务所主案设计师、DOP 特邀讲师。擅长领域:私宅空间设计,兼具深厚美学修养与扎实手绘功底,可快速、精准地通过手绘表达设计构想,并高效将概念转化为完整、可落地的设计方案。

讲师 3:单老师

从业 18 年,原中国美院建筑设计院主案设计师,清风室内设计事务所联合创始人,获 “杭州杰出青年设计师” 称号。主张 “设计不止于表面的美感,更蕴含对文化的深刻理解”,同时具备丰富的现场施工与项目管理经验。

讲师 4:崔老师

从业 10 年,中国美术学院硕士,环境艺术设计专业高级讲师,现任清风设计学院特级讲师、清风设计事务所首席讲师。擅长私宅别墅设计。

讲师 5:翘楚老师

从业室内设计行业 8 年,现任清风室内设计空间讲师、效果图讲师,同时担任清风设计事务所主案设计师。擅长各种调性空间的效果表现。

讲师 6:小野老师

从业 6 年,现任清风教育施工图讲师、定制设计讲师,同时为清风设计工作室设计师。

【教学环境】

专项空间:灯光实验室(色彩视觉研究)、AI 学习室、手工模型间、手绘教室、多媒体阶梯教室​

学习特色:中国美院 / 设计院专家主导,股份制教学;严进严出(试听试学),思维导图记笔记​

环境展示——

色彩前台

办公空间

资料区域

教学教室

【教学优势】

垂直深耕:15 年专注室内设计,全流程教学(基础软件 - 全案设计),重施工工艺与材料实践​

实战驱动:“边学边做”,参与住宅 / 大平层 / 别墅 / 工装项目(谈单 - 量房 - 施工跟进)​

师资模式:中国美院 / 设计院专家团队,股份制管理(教学与项目收益挂钩);全日制小班,一对一辅导​

运营理念:非商业化(重课程研发与师资),十余年沉淀 “系统学习 + 实践跟进” 模式​

教学现场——

课堂笔记

教学现场

图纸讲解

绘图实践

【就业体系​】

课程导向:全流程项目实践,对接设计院规范(含工装消防、材料预算)​

就业通道:①机构自营设计业务,参与高端项目,毕业可跳过实习期;②定向合作企业,考核后优先入职​

职业支持:特色课程(灯光 / 智能家居)强化竞争力;提供设计师 - 讲师晋升路径,优秀学员可获股份分红​

开班信息

学时
学费
操作

    校区地址

    广州
    杭州
    二维码

    微信扫一扫,发送到手机

    随时随地,用手机查看地图路线,更可实时导航,轻松到校!

    学校相册

    更多 >
    环境/教学大图
    环境/教学大图
    环境/教学大图
    环境/教学大图

    读书保障 :

    • 正规资质

      所有学校都经过好学校品牌认证,办学许可证、工商营业执照。

    • 免费求学顾问

      通过好学校咨询,你可获得好学校免费求学顾问1对1专业服务,助你快速找到满意学校!

    • 优质教学

      通过好学校报读,你将可在好学校进行课程点评,你的评价将影响学校招生,学校会更重视你,给你更优质教学,避免你差评。

    • 消费权益保障

      通过好学校报读,若你与学校发生纠纷,你可获得好学校来自第三方的平台保障,协助你让学校退款,维护你的合法权益!

    更多适合课程

    全城室内设计学校,一网打尽,立即搜索:

    城市 : 求学课程 : 上课时间 :

    课程咨询

    好学校二维码

    随时随地与老师微信互动

    在线预约免费试听

    • 现在免费预约试听,报名可最高返现
    • 获取验证码
    官方授权声明

    本平台为 [杭州清风室内设计培训学校] 官方授权信息发布渠道,本页面所有招生信息由合作方提供并授权确认发布,内容责任由提供方全权承担。 如发现信息虚假、有误等,请点击反馈:联系客服

    合作资质已公示,点击核查:查看资质

    杭州清风室内设计培训学校Logo 杭州清风室内设计培训学校
    营业执照
    好的
    ;